Partager l'annonce
Si vous souhaitez partager cette annonce, vous devez accepter l'utilisation des cookies : Gestion des cookies
Gestion de l'annonce
Statistiques de l'annonce
Nombre de vues : 20
Dernière visite le : 04/01 à 05:23
Référence : 502905611










Détail de l'annonce
Nicolas BORGE vous propose ce bien :
Paris 11e – Métro Bastille
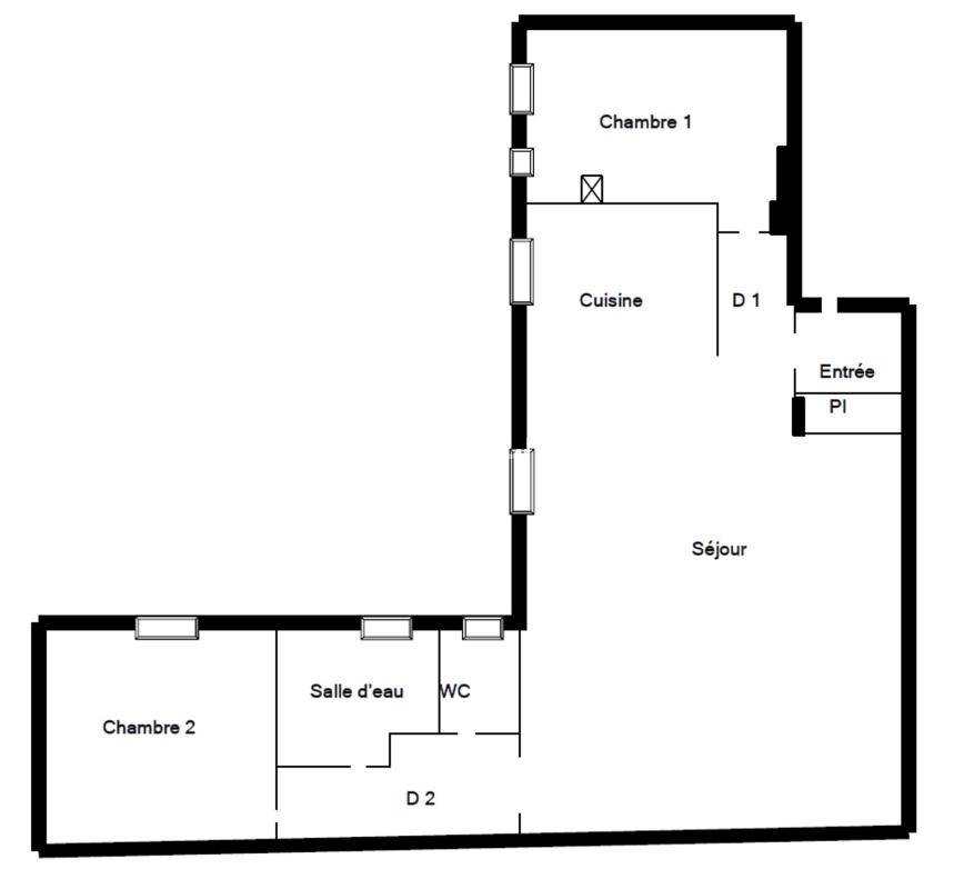
Charmant 3 pièces rénové – Calme absolu sur cour – 1er étage
Dans une copropriété de caractère datant de 1880, parfaitement entretenue (ravalement réalisé en 2010), découvrez cet appartement cosy et entièrement rénové en 2022, situé au 1er étage et bénéficiant d'un calme total, l'ensemble donnant uniquement sur cour.
L'appartement offre une belle hauteur sous plafond de 2,80 m et se compose d'une entrée avec rangements, d'un séjour lumineux avec cuisine ouverte aménagée, de deux chambres très au calme, ainsi que d'une salle d'eau contemporaine avec douche à l'italienne, double vasque, et WC séparés.
Idéalement situé, au cœur d'un quartier vivant et recherché, avec ses nombreux commerces, restaurants et services du secteur Bastille. Métro Bastille à seulement 2 minutes à pied (lignes 1, 5 et 8).
Pour plus d'informations ou organiser une visite, contactez Nicolas Borge – Valeur Immo Paris.nLes informations sur les risques auxquels ce bien est exposé sont disponibles sur le site Géorisques : www.georisques.gouv.fr
Commentaire(s)
Aucun commentaire