Partager l'annonce
Si vous souhaitez partager cette annonce, vous devez accepter l'utilisation des cookies : Gestion des cookies
Gestion de l'annonce
Statistiques de l'annonce
Nombre de vues : 20
Dernière visite le : 03/12 à 08:59
Référence : 489433973









Détail de l'annonce
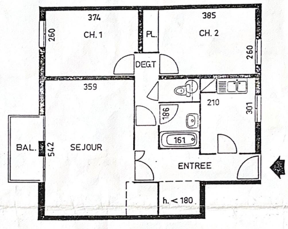
Cet appartement de 3 pièces est situé à la fois dans l'hypercentre et côté jardin de la résidence. Vue dégagée et sans vis-à-vis.
Son emplacement est idéal à proximité des commerces, des écoles. A cinq minutes à pied des transports en commun ligne RER C et trains N, U.
Base de loisir, Golf, centre aquatique, théâtre, universités, pistes cyclables, restaurants.
Ce bien est composé de :
- entrée
- cuisine équipé
- séjour donnant sur un balcon sud
- cellier
- deux chambres (dont une avec dressing)
- salle d'eau récente
- WC indépendant
Une cave et une place de parking privée complètent ce bien.
Les plus :
- lumineux
- sans vis-à-vis
- voie piétonne
- rénové avec goût
- double vitrage
- chauffe eau 80L Sauter connecté
- copropriété à faible charges
Contactez-moi dès maintenant pour organiser une visite.
Bien soumis au statut de la copropriété, 35 logements, procédure en cours : aucune, 46 lots, Charges budget prévisionnel annuel 1 900 €.
Annonce publiée par Catherine Delaunay (EI) votre agent commercial en immobilier LF immo à Montigny-Le-Bretonneux, 78180 immatriculé au RSAC de versailles sous le n°819 384 579 000 28. Consultez nos tarifs sur le site LF immo.
Les informations sur les risques auxquels ce bien est exposé sont disponibles sur le site Géorisques : www.georisques.gouv.fr.
Commentaire(s)
Aucun commentaire