Partager l'annonce
Si vous souhaitez partager cette annonce, vous devez accepter l'utilisation des cookies : Gestion des cookies
Gestion de l'annonce
Statistiques de l'annonce
Nombre de vues : 19
Dernière visite le : 05/12 à 03:18
Référence : 500658305




Détail de l'annonce
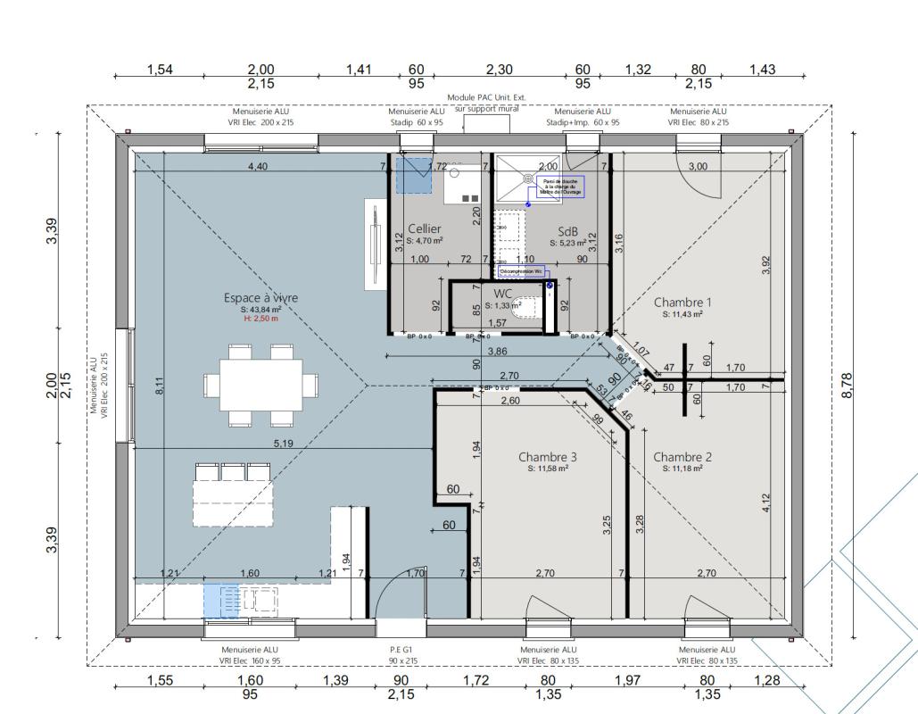
Maison neuve lieu-dit Cassy-Nord – 325 000 € terrain + construction
PC ACCEPTÉ ET PURGÉ DE TOUT RECOURS
Vous rêvez d'une maison moderne, lumineuse et facile à vivre ? Découvrez cette belle maison neuve de 91,89 m² RE2020 sur une parcelle de 450m2, modernité d'une construction neuve et un budget maîtrisé.
Les atouts :
Un espace de vie traversant de plus de 43 m², baigné de lumière naturelle
3 chambres confortables (entre 11 et 12 m² chacune)
Salle de bain, WC séparé, cellier et entrée avec placard intégré
Menuiseries ALU RAL 7016 (gris anthracite)
Carrelage 60x60, faïence et sanitaires inclus
Maison livrée prête à décorer : il ne vous restera plus qu'à y mettre votre touche personnelle
Prix : 325 000 € (terrain + construction)
Contactez Géraldine par téléphone O675710291 dès maintenant pour découvrir ce projet et concrétiser votre rêve immobilier !
GIB Construction, 2ème génération de constructeurs bâtisseurs en GIRONDE, 19 agences de proximité dans le Sud-Ouest pour vous accompagner dans votre projet personnalisé sur-mesure.
Commentaire(s)
Aucun commentaire