Partager l'annonce
Si vous souhaitez partager cette annonce, vous devez accepter l'utilisation des cookies : Gestion des cookies
Gestion de l'annonce
Statistiques de l'annonce
Nombre de vues : 34
Dernière visite le : 09/04 à 16:14
Référence : 518201588








Détail de l'annonce
Loft duplex entièrement rénové ? Hyper centre de Roanne
Situé en plein coeur du centre-ville de Roanne, ce futur loft en duplex entièrement rénové séduira les amateurs de volumes, de luminosité et d'esprit contemporain. Vous profiterez d'un emplacement privilégié en hyper centre, à proximité immédiate des commerces, restaurants, transports et commodités.
Actuellement à l'état brut, ce bien fera l'objet d'une rénovation complète avec des prestations modernes et de qualité, afin d'offrir un cadre de vie unique mêlant charme industriel et confort actuel.
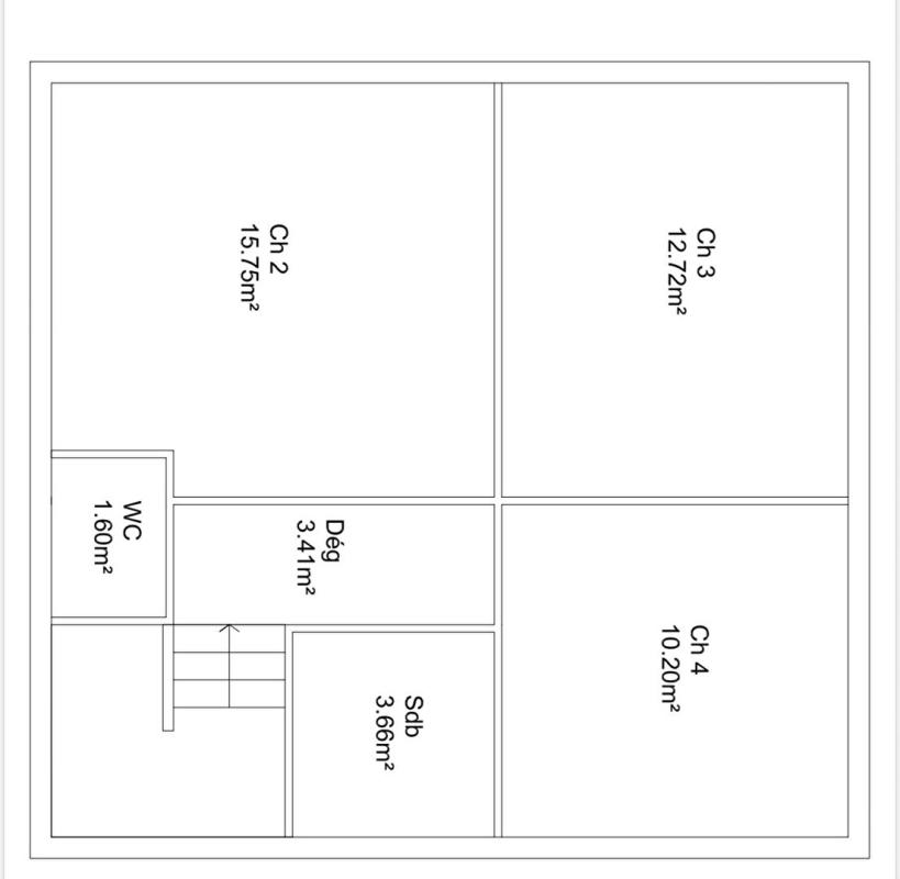
Le projet prévoit une surface de 78,80 m² habitables répartie sur deux niveaux :
Au rez-de-chaussée :
- une grande pièce de vie ouverte comprenant cuisine, salon et salle à manger
- un WC indépendant
- une buanderie
A l'étage :
- trois chambres
- une salle d'eau avec WC
Un sous-sol en dépendance complète ce bien et pourra servir d'espace de stockage ou d'aménagement complémentaire.
Le loft bénéficiera à terme de prestations contemporaines, d'une optimisation des espaces et d'une performance énergétique améliorée.
Prix de vente : 215 000 euros FAI
Dont 10 000 euros d'honoraires à la charge de l'acquéreur
Prix hors honoraires : 205 000 euros
DPE projeté après rénovation : classe B
Surface habitable : 78,80 m²
Visuels 3D non contractuels ? projections d'aménagement après rénovation.
Le bien est actuellement à l'état brut et sera vendu entièrement rénové après réalisation des travaux.
Commercialisation anticipée : le propriétaire n'ayant pas encore signé le compromis relatif au bien, la vente demeure sous réserve de la finalisation de cette acquisition et du lancement des travaux.
Les informations sur les risques auxquels ce bien est exposé sont disponibles sur le site : www.georisques.gouv.fr
Pour plus d'informations sur ce bien, merci de contacter Copet Lesly au 06 42 92 41 03.
(4.88 % honoraires TTC à la charge de l'acquéreur.)
Commentaire(s)
Aucun commentaire