Partager l'annonce
Si vous souhaitez partager cette annonce, vous devez accepter l'utilisation des cookies : Gestion des cookies
Gestion de l'annonce
Statistiques de l'annonce
Nombre de vues : 92
Dernière visite le : 27/01 à 05:08
Référence : 484598156










Détail de l'annonce
Saint-Genis-Laval – Maison familiale de 155 m² avec jardin arboré
LFImmo vous présente cette charmante maison familiale pleine de cachet, située dans un secteur résidentiel calme et verdoyant, à proximité immédiate de toutes les commodités.
Implantée sur un terrain plat et arboré de 765 m², elle offre un cadre de vie confortable et fonctionnel, idéal pour une famille.
Les atouts du bien :
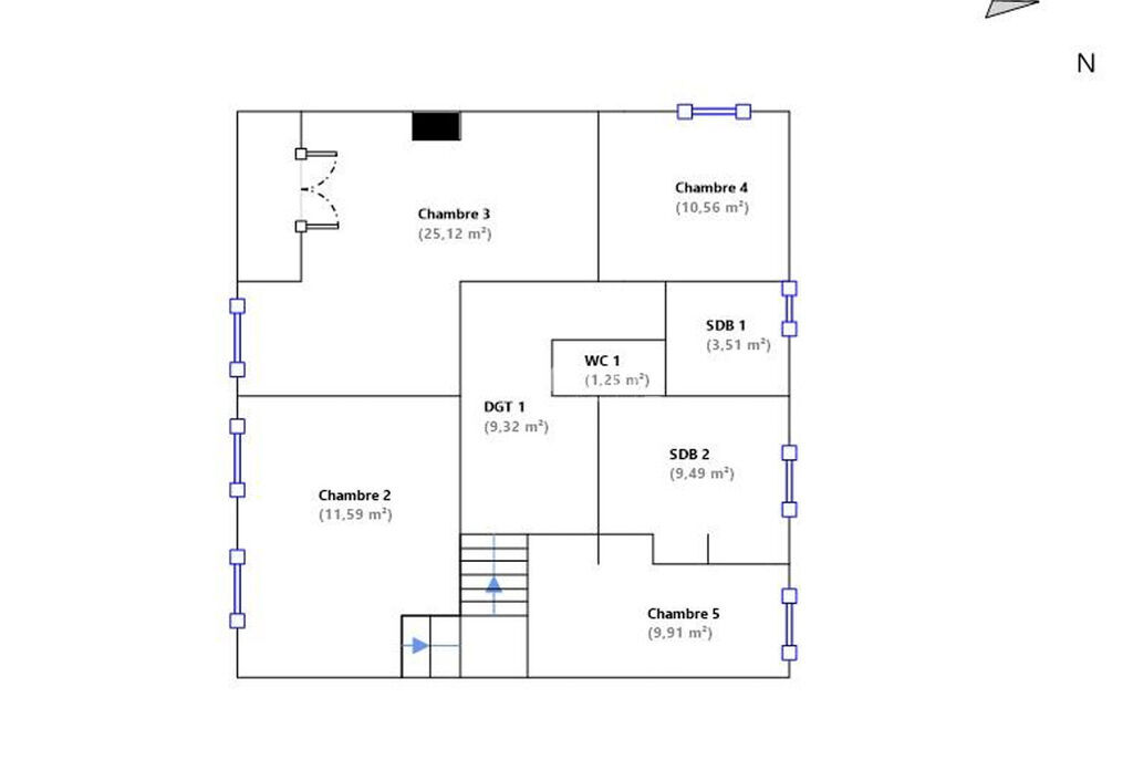
• Surface habitable : 155 m² sur 2 niveaux
• Terrain : 765 m² clos, plat et arboré
• 5 chambres, dont une suite parentale de 25 m²
• 3 pièces d'eau (1 salle de bains + 2 salles d'eau)
• Stationnements extérieurs et abri de jardin
Disposition intérieure :
Rez-de-chaussée :
• Entrée avec rangement
• Séjour lumineux de 31 m², exposé Sud-Ouest, avec cheminée à insert
• Cuisine équipée de 15 m² avec accès direct à la terrasse orientée Est
• Chambre avec salle d'eau privative
• Buanderie, WC séparés, cagibi sous escalier
Étage :
• Dégagement avec placards
• Suite parentale de 25 m² avec rangements
• 3 chambres supplémentaires (10 à 12 m²)
• Grande salle de bains avec baignoire et douche
• Salle d'eau, WC séparés
• Accès aux combles/grenier
Équipements & confort :
• Chauffage électrique par chaudière à circulation d'eau
• Double vitrage PVC au rez-de-chaussée, avec volets roulants motorisés
• Double vitrage à l'étage sur menuiseries d'origine
• Isolation des combles et isolation par l'extérieur (2019)
• Gouttières, sous-faces et bandeaux refaits
• Alarme, interphone, pré-câblage pour portail motorisé
Un emplacement stratégique :
• Métro B à proximité
• Arrêt de bus à 4 minutes à pied
• Commerces, écoles, collèges, lycée et centre commercial Auchan Saint-Genis 2 accessibles rapidement
• Accès autoroutiers faciles
Taxe foncière : 1 396 €
Annonce publiée par Pascale Vartanian (EI) votre agent commercial en immobilier LF immo à Mornant, 69440 immatriculé au RSAC de Lyon sous le n°507 583 599 000 18. Consultez nos tarifs sur le site LF immo.
Les informations sur les risques auxquels ce bien est exposé sont disponibles sur le site Géorisques : www.georisques.gouv.fr.
Commentaire(s)
Aucun commentaire