Partager l'annonce
Si vous souhaitez partager cette annonce, vous devez accepter l'utilisation des cookies : Gestion des cookies
Gestion de l'annonce
Statistiques de l'annonce
Nombre de vues : 82
Dernière visite le : 19/05 à 02:43
Référence : 519416561







Détail de l'annonce
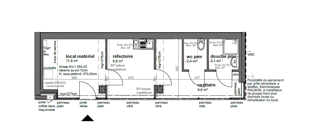
Lyon Métropole Habitat vous propose à la vente un local d'activité de 35,70 m², situé au RDC d'un immeuble au coeur du quartier Montessuy à Caluire-et-Cuire.
Idéalement situé au 75 rue Pasteur, ce local bénéficie d'une visibilité directe sur rue, offrant ainsi une excellente accessibilité. Il profite d'un emplacement recherché, à proximité immédiate des commerces, services et commodités du secteur. Situé en face de l'arrêt de bus Montessuy Calmette, desservi par la ligne C1.
Le bien, en très bon état se compose d'une pièce principale modulable, un espace réfectoire, ainsi qu'un vestiaire. Le local dispose également de sanitaires indépendants (WC et douche). Cet espace convient parfaitement pour une activité tertiaire : bureaux, professions libérales, espaces créatifs ou collaboratifs, cabinets de conseil, etc. Toutes activités de bouches sont proscrites (restauration, traiteur, etc.)
La vente est soumise à validation d'un dossier de candidature étayé.
Prix de vente : 120 000 euros TTC.
Commentaire(s)
Aucun commentaire