Partager l'annonce
Si vous souhaitez partager cette annonce, vous devez accepter l'utilisation des cookies : Gestion des cookies
Gestion de l'annonce
Statistiques de l'annonce
Nombre de vues : 95
Dernière visite le : 12/02 à 13:55
Référence : 428059427









Détail de l'annonce
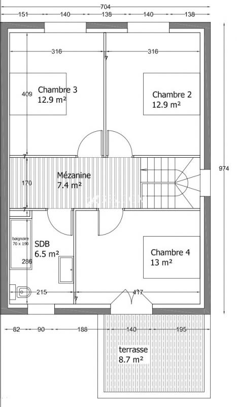
PLOUFRAGAN, secteur La Ville-Au-Beau, maison contemporaine de 2016 de 114m2 sur une parcelle de 270m2 -
Maison vivable de plain-pied avec au rez-de-chaussée : espace cuisine/salle à manger/salon de 34m2, 1 chambre, 1 salle d'eau et 1 buanderie -
A l'étage : le pallier dessert 3 belles chambres (dont 1 avec terrasse) et 1 salle de bain -
Tout à l'égout -
Le gros atout de cette maison est son DPE en A - chauffage et eau chaude sanitaire par pompe à chaleur -
Vidéo de présentation disponible sur demande -
Honoraires 3% TTC de la valeur du bien, les honoraires sont à la charge de l'acquéreur. Pour découvrir cette maison, contactez votre conseillère locale, Stéphanie MIOSSEC EI au 07 81 57 59 65 - RSAC de St Brieuc no 877 562 496 - 3%.COM immobilier : réseau national à honoraires réduits à 3% TTC -
Les informations sur les risques auxquels ce bien est exposé sont disponibles sur le site Géorisques : www.georisques.gouv.fr - Annonce rédigée et publiée par un Agent Mandataire -
Commentaire(s)
Aucun commentaire