Partager l'annonce
Si vous souhaitez partager cette annonce, vous devez accepter l'utilisation des cookies : Gestion des cookies
Gestion de l'annonce
Statistiques de l'annonce
Nombre de vues : 71
Dernière visite le : 06/04 à 15:10
Référence : 499223879










Détail de l'annonce
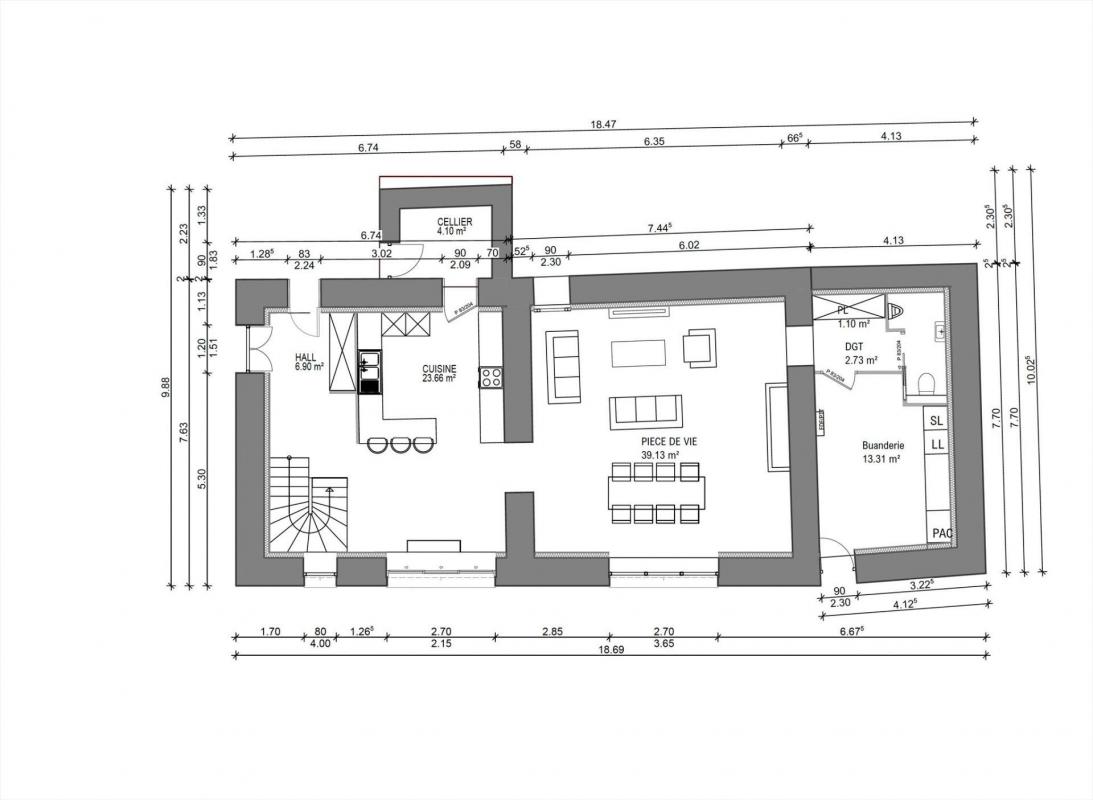
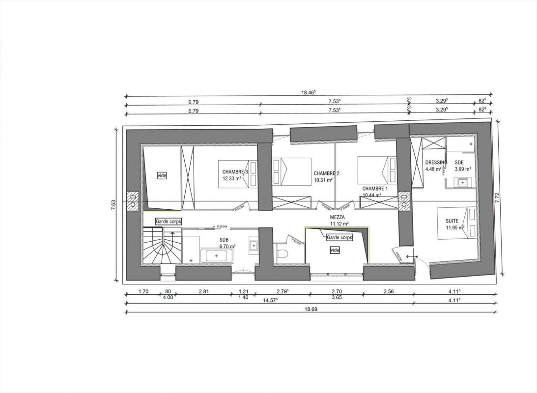
C'est en campagne de Pleugueuneuc, dans un hameau très calme, que se trouve cette longère avec dépendances sur un terrain de 5725 m2. Un projet proposant 163 m2 habitable est offert.
En rénovant l'intégralité du bâtiment principal le potentiel habitable est de plus de 360 m2. Il restera les dépendances (60 m2 au sol), et le hangar pouvant servir de carport ou de garage. Une partie du terrain est constructible. Un puits se trouve sur la propriété.
Les bâtiments se prêtent parfaitement à un très beau projet d'habitation avec gîte et/ou chambres d'hôte, une division pour plusieurs logements ou une belle propriété familiale.
Certain travaux ont déjà été réalisés. L'assainissement individuel est à créer.
Les photos et la vidéo représentatives de l'état actuel des bâtiments.
Les informations sur les risques auxquels ce bien est exposé sont disponibles sur le site Géorisques : www.georisques.gouv.fr
Prix de vente : 169 600 €
Honoraires charge vendeur
Contactez votre consultant megAgence : Jean-Daniel MENARD, Tél. : 06 60 16 78 59, E-mail : jean-daniel.menard@megagence.com - EI - Agent commercial immatriculé au RSAC de SAINT MALO sous le numéro 792 549 289
Commentaire(s)
Aucun commentaire