Partager l'annonce
Si vous souhaitez partager cette annonce, vous devez accepter l'utilisation des cookies : Gestion des cookies
Gestion de l'annonce
Statistiques de l'annonce
Nombre de vues : 60
Dernière visite le : 28/03 à 10:40
Référence : 513239780








Détail de l'annonce
DEVENIR PROPRIETAIRES A DES CONDITIONS EXCEPTIONNELLES AVEC MORBIHAN HABITAT
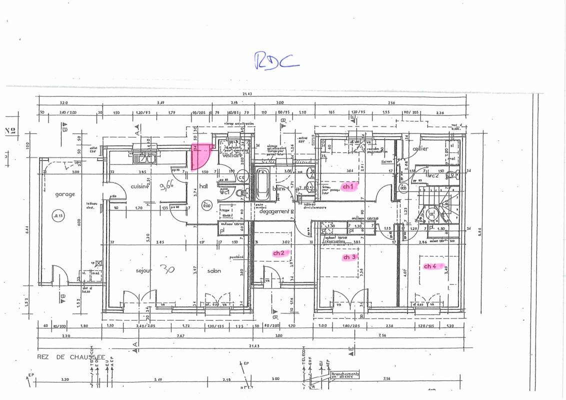
A VENDRE, maison familiale non mitoyenne T7 de 150m² à LE GUERNO
Idéalement située 3 Résidence du Moulin, entre le bourg, les écoles et le stade, cette maison familiale construite en 2001 offre un cadre de vie agréable, au calme et à proximité immédiate des commodités.
D'une surface habitable d'environ 150 m², elle propose au rez-de-chaussée une entrée avec vestiaire, une cuisine ouverte sur un salon-séjour spacieux et lumineux d'environ 45 m², un cellier, quatre chambres ainsi qu'une salle de bain.
À l'étage, un hall dessert deux chambres supplémentaires et une salle de bain avec WC, offrant un espace idéal pour accueillir famille, invités ou aménager un bureau pour le télétravail.
Un garage vient compléter l'ensemble, offrant un espace de stationnement et de rangement appréciable au quotidien.
Implantée sur un terrain de 609 m² exposé plein Sud, la maison bénéficie d'un jardin sans vis-à-vis, parfait pour profiter des beaux jours en toute intimité. Non mitoyenne, elle séduit par ses beaux volumes et sa très belle luminosité.
Une maison fonctionnelle et confortable, idéale pour une famille recherchant espace et tranquillité au cœur du Guerno.
Classement DPE : E
245 000 € net vendeur + frais de notaires réduits. Pas de frais d'agence. Eligible au PTZ.
UNIQUEMENT EN RESIDENCE PRINCIPALE. Offre d'achat à envoyer par courrier (MH – Service Vente – 4 Rue du Commandant Charcot 56000 VANNES) ou par mail (accession@morbihan-habitat.fr). Pour tous renseignements et visites sur RDV contactez MORBIHAN HABITAT (02 97 40 22 99)
Réf. : 1030-02-00-0001
Commentaire(s)
Aucun commentaire