Partager l'annonce
Si vous souhaitez partager cette annonce, vous devez accepter l'utilisation des cookies : Gestion des cookies
Gestion de l'annonce
Statistiques de l'annonce
Nombre de vues : 4
Dernière visite le : 09/01 à 10:10
Référence : 481263617










Détail de l'annonce
À Vendre : Terrain de 36,09 ares - Bourbach-le-Haut (68)
Situé au cœur de la commune de Bourbach-le-Haut, ce terrain de 36,09 ares réparti sur trois parcelles (266, 512, 294) offre une belle opportunité pour les amateurs de calme et de nature.
Points forts :
- Partie constructible : La partie haute du terrain, offrant une belle vue dégagée, est classée en zone UB, ce qui permet la construction de votre future maison. Accès direct par la rue du Réservoir.
- Secteur préservé : La partie basse, classée en zone UBP, est non constructible et a pour vocation de préserver une interface paysagère boisée le long de la route départementale, garantissant un cadre naturel et tranquille.
- Non concerné par les risques géologiques : Après étude, ce terrain n'est pas situé dans une zone touchée par les phénomènes de retrait et de gonflement des argiles, assurant ainsi une stabilité optimale pour tout projet de construction.
Ce terrain est idéal pour ceux qui recherchent un cadre de vie verdoyant, à proximité des commodités, tout en profitant d'une grande tranquillité.
Informations clés :
- Superficie totale : 3 609 m² (36,09 ares)
- Zones UB (constructible) et UBP (non constructible) selon le Plan Local d'Urbanisme
- Accès facile par la rue du Réservoir
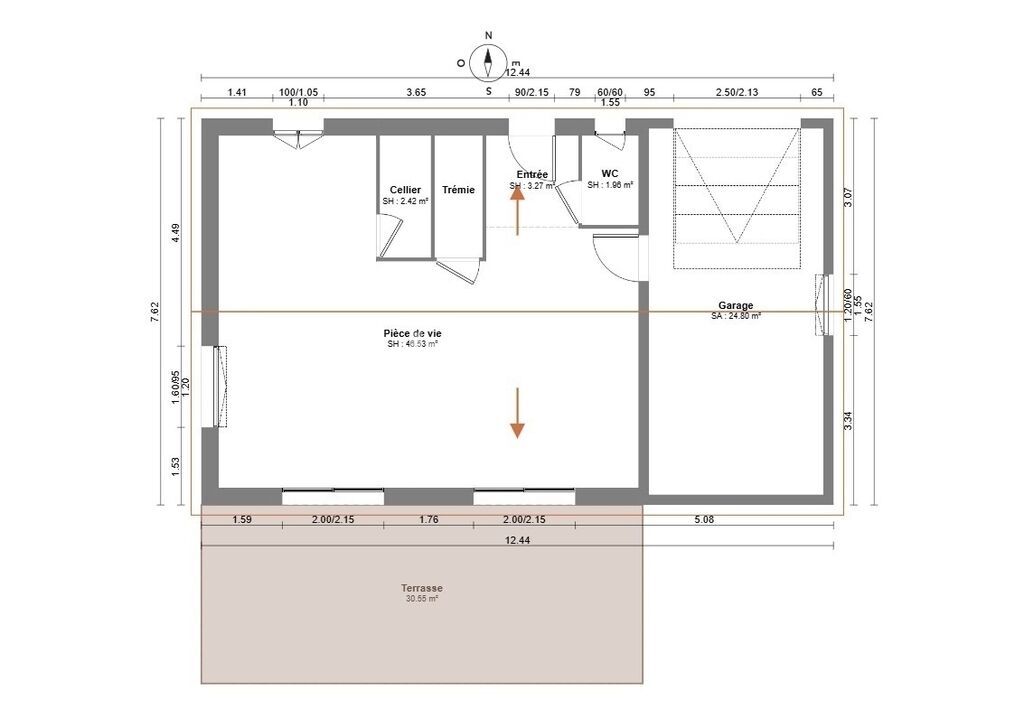
Un avant-projet de maison est déjà disponible !
Pour aider à se projeter, je mets à disposition un avant-projet comprenant deux visuels ainsi que les plans d'agencement pour une maison d'environ 105 m² habitables, avec 3 chambres, un garage de 24 m² et un sous-sol de même surface.
Le coût estimé de construction se situe entre 400 000 et 430 000 € selon les prestations choisies.
Un bon point de départ pour envisager sereinement votre projet de construction !
Ne manquez pas cette opportunité unique à Bourbach-le-Haut ! Pour plus d'informations ou pour organiser une visite, n'hésitez pas à me contacter.
Jonathan Gubello
Mandataire Immobilier Indépendant
LFimmo La Fourmi immo
Annonce publiée par Jonathan Gubello (EI) votre agent commercial en immobilier LF immo à Thann, 68800 immatriculé au RSAC de Mulhouse sous le n°478 703 309 000 29. Consultez nos tarifs sur le site LF immo.
Les informations sur les risques auxquels ce bien est exposé sont disponibles sur le site Géorisques : www.georisques.gouv.fr.
Commentaire(s)
Aucun commentaire