Partager l'annonce
Si vous souhaitez partager cette annonce, vous devez accepter l'utilisation des cookies : Gestion des cookies
Gestion de l'annonce
Statistiques de l'annonce
Nombre de vues : 140
Dernière visite le : 30/04 à 20:42
Référence : 499147454




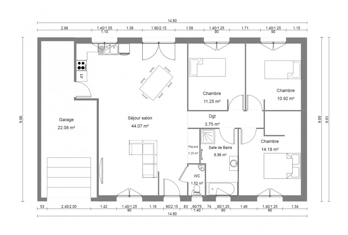
Détail de l'annonce
Bonjour ,
Découvrez ce projet de construction de cette maison de plain pied sur le secteur de Porcelette / la maison est située dans un petit lotissement placé à quelques minutes des commerces et des écoles .
les plans sont modifiables selon vos souhaits ,
la maison est chauffée par le sol avec une pompe à chaleur et le tarif proposé comprend les sanitaires , les carrelages et les faïences dans la salle de bains ...
Commentaire(s)
Aucun commentaire