Partager l'annonce
Si vous souhaitez partager cette annonce, vous devez accepter l'utilisation des cookies : Gestion des cookies
Gestion de l'annonce
Statistiques de l'annonce
Nombre de vues : 229
Dernière visite le : 09/05 à 22:42
Référence : 477075074





Détail de l'annonce
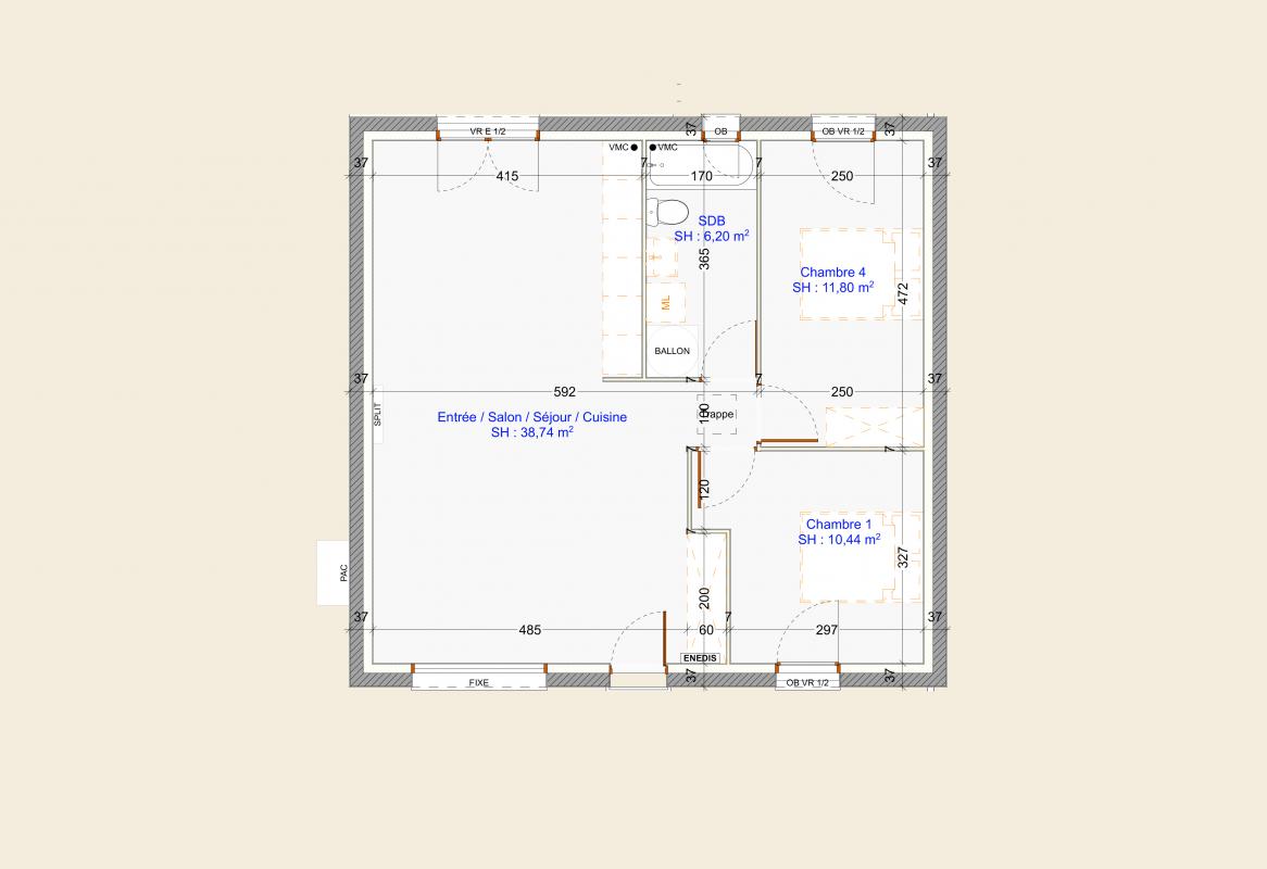
Dernier-né de la gamme VILLACREA, découvrez ce modèle Athéna 67, imaginée pour offrir un cadre de vie confortable, évolutif et accessible. Avec ses 67 m² habitables, ce projet propose un agencement optimisé et fonctionnel, parfaitement adapté à un premier achat ou à un investissement locatif réfléchi.
La maison comprend deux chambres bien agencées, un séjour lumineux de 38 m², et une ambiance intérieure chaleureuse. Le sol est livré en stratifié 7 mm, avec la possibilité d'opter pour un carrelage grand format 60x60 selon les envies. Les menuiseries sont en PVC blanc et la porte d'entrée en acier, pour allier robustesse et esthétique.
Côté confort, cette maison est équipée d'un système de chauffage Trinéo Atlantic avec climatisation intégrée, et la production d'eau chaude est assurée par une pompe à chaleur thermodynamique, pour un confort optimal en toute saison. Naturellement conforme à la réglementation RE2020, elle garantit un logement économe, respectueux de l'environnement et pensé pour durer.
Autre atout majeur : cette maison est conçue dès l'origine pour évoluer. Sa maçonnerie permet un agrandissement futur sur le côté gauche, offrant la possibilité de créer un garage, une suite parentale, un bureau ou encore d'agrandir la pièce de vie selon l'évolution de vos besoins.
Enfin, une remise exclusive de 3 000 € est offerte chez notre cuisiniste partenaire pour l'installation d'une cuisine adaptée à ce modèle, un vrai coup de pouce pour bien démarrer votre projet.
Athéna 67, c'est l'intelligence de l'essentiel, la qualité VILLACREA dans un format compact et évolutif, pour une maison pensée pour aujourd'hui et prête pour demain.
Terrain à bâtir de 609m² dont 428m² constructibles dans une rue calme de Pommiers à deux pas de l'école.Façade sur rue de 32m,
Garanties et assurances obligatoires incluses. Prix indicatif hors peintures, hors options, hors raccordements, hors branchements et hors frais de notaire. Terrain sélectionné et vu pour vous sous réserve de disponibilité et au prix indiqué par notre partenaire foncier. Visuels non contractuels.
Commentaire(s)
Aucun commentaire