Partager l'annonce
Si vous souhaitez partager cette annonce, vous devez accepter l'utilisation des cookies : Gestion des cookies
Gestion de l'annonce
Statistiques de l'annonce
Nombre de vues : 106
Dernière visite le : 12/05 à 23:32
Référence : 510870971







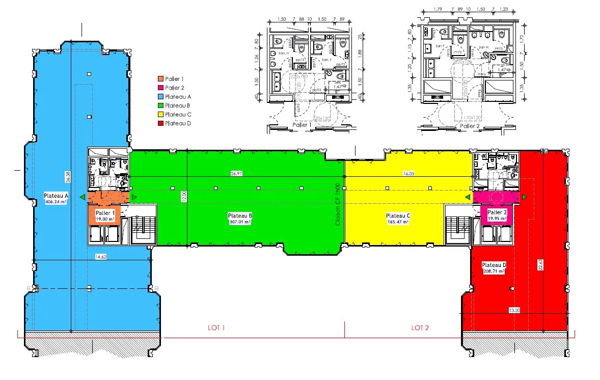
Détail de l'annonce
Accès PMR.
Contrôle d'accès.
2 ascenseurs.
Parties communes rénovées.
RIE entièrement rénové avec terrasse.
PC sécurité.
2 paliers avec ascenseurs et escaliers.
Aire de livraison.
Fibre optique.
Climatisation réversible.
Double exposition.
Plateaux en excellent état (rénovation B et C).
Aménagement mixte espace ouvert et cloisonné.
Cuisine aménagée.
Câblage informatique.
2 doubles blocs sanitaires.
Parking inclus dans le prix de vente.
Location ou Vente à la division possible :
- Plateaux A/B (736 m² environ) et/ou
- Plateaux C/D (410 m² environ)
Commentaire(s)
Aucun commentaire