Partager l'annonce
Si vous souhaitez partager cette annonce, vous devez accepter l'utilisation des cookies : Gestion des cookies
Gestion de l'annonce
Statistiques de l'annonce
Nombre de vues : 35
Dernière visite le : 05/12 à 15:32
Référence : 464240105







Détail de l'annonce
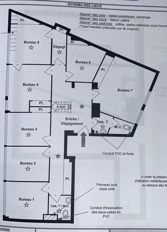
Proche de la gare de Villiers le bel / Gonesse/ Arnouville, ce local avec grande devanture est idéal pour un cabinet médical pouvant accueillir plusieurs médecins, professions paramédicales ou bien d'autres activités tel que start up ou cabinet d'avocat,d'architecte etc... Il dispose d'une grande entrée pouvant faire office d'accueil et d'une cuisine, d'une salle d'attente, de divers rangements et placards, de deux toilettes avec lavabo et de cinq bureaux dont deux communicant entre eux. La cave saine permet le stockage.
Le bien comprend 3 lots, et il est situé dans une copropriété de 14 lots (les charges courantes annuelles moyennes de copropriété sont de 350 € et le syndicat des copropriétaires ne fait pas l'objet d'une procédure citée à l'article L. 721-1 du code de la construction et de l'habitation).
Les informations sur les risques auxquels ce bien est exposé sont disponibles sur le site Géorisques : www.georisques.gouv.fr
Prix de vente HT : 382 000 €
Honoraires charge vendeur
Contactez votre consultant megAgence : Abdelaziz BENAMARA, Tél. : 0785600508, E-mail : abdelaziz.benamara@megagence.com - EI - Agent commercial immatriculé au RSAC de PONTOISE sous le numéro 390 085 041
Commentaire(s)
Aucun commentaire