Partager l'annonce
Si vous souhaitez partager cette annonce, vous devez accepter l'utilisation des cookies : Gestion des cookies
Gestion de l'annonce
Statistiques de l'annonce
Nombre de vues : 189
Dernière visite le : 23/05 à 23:15
Référence : 490078310





Détail de l'annonce
Quoi de mieux que d'anticiper le réchauffement climatique en construisant à votre idée je vous propose l'achat d'une maison neuve sur un terrain constructible dans le cœur du village . pas de copropriété.
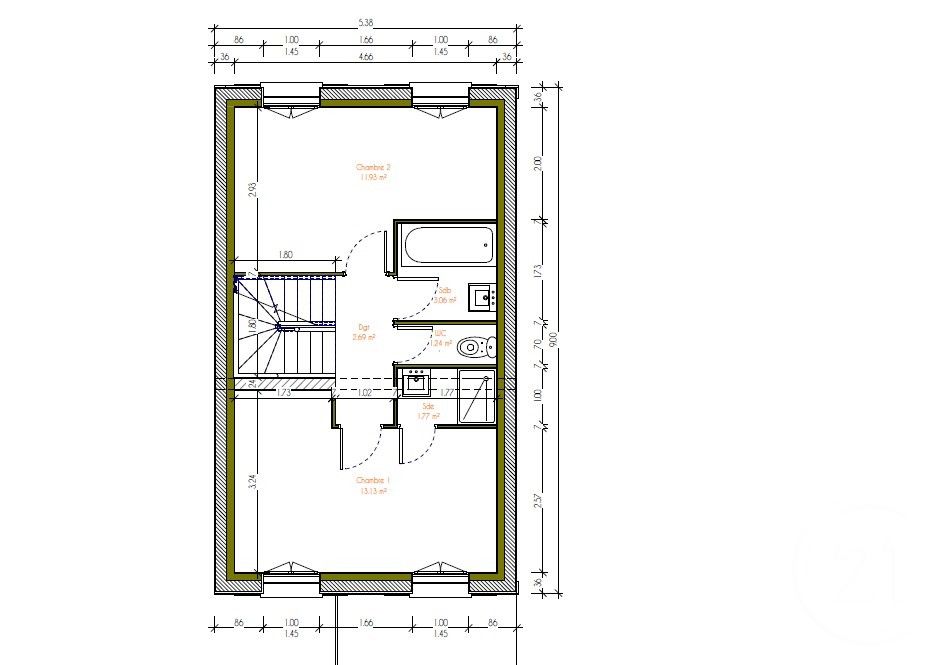
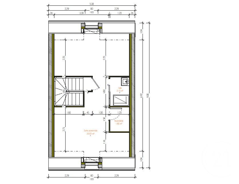
Un projet de construction pour une maison neuve au style parisien avec toiture de type Mansard. D'environ 120 m2 et comprenant quatre chambres (poss 5), un stationnement, elle dispose sur l'arrière d'un jardin plein sud et sans vis a vis.
De style "ancienne demeure" utilisant des parements sur la façade.
Au rez-de-chaussée l'entrée dessert une pièce de vie composée d'un séjour avec une cuisine ouverte et sanitaire.
Cet espace ouvert donne directement accès au jardin grâce à de larges baies vitrées.
L'étage dédié à l'espace nuit est idéal pour la famille. Il se compose d'une suite parentale avec sa salle d'eau et son coin bureau donnant accès à une terrasse. L'étage dessert également seconde chambre. Deux autres chambres au second niveau avec le salle d'eau. Vous serez séduits par les nombreux atouts de ce modèle conçu pour s'adapter à un environnement urbain contraint - petite parcelle - et optimiser chaque espace de vie. Quartier pavillonnaire, vue dégagée, RER A Fontenay-sous -Bois et du bois.
Livraison fin 2026
Demandez plus de renseignements avec un contrat de construction de maison individuelle, dans le cadre de la loi du 19/12/1990 à nos constructeurs.
Pour les écoles c'est le secteur de l'école Victor Duruy, le Montalembert à 12 mn à pied et pour les commerces ils sont à deux pas dans le village. Le RER et le bois sont à seulement 750 m, de plus le bus n124 est à deux pas.
Une affaire rare.
Conseil :
Donation défiscalisé possible 2025 pour l'acquisition d'un logement neuf ou en l'état futur d'achèvement ;
Deux limites financières sont prévues pour l'exonération dans ce cadre :
un même membre de votre famille ne peut pas vous faire un don exonéré de plus de 100 000 € ;
le total des dons exonérés que vous recevez pour votre projet immobilier ne peut pas être supérieur à 300 000 €.
Appelez-moi au 06 08 85 38 32 Bien proposé par Olivier JAMES EI, agent commercial (RSAC 398391961)
Commentaire(s)
Aucun commentaire