Partager l'annonce
Si vous souhaitez partager cette annonce, vous devez accepter l'utilisation des cookies : Gestion des cookies
Gestion de l'annonce
Statistiques de l'annonce
Nombre de vues : 80
Dernière visite le : 13/05 à 07:50
Référence : 500001437







Détail de l'annonce
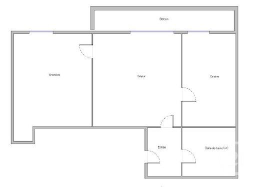
Votre agence Century21 Dalayrac vous présente un appartement de deux pièces avec balcon à Vincennes limite Fontenay.
Ce bien dispose d'une entrée, d'un séjour donnant sur un bacon et exposé sud, d'une cuisine récemment aménagé et équipée, d'une chambre avec placard, d'une salle de bains wc, une cave.
Un immeuble pierre de taille avec ascenseur et le parking collectif un vrai plus.
Les commerces sont à proximité, Monoprix. RER ou métro à 15 mn à Pied. Le bois de Vincennes à 1km à pied. Montant estimé des dépenses annuelles d'énergie pour un usage standard entre 1000.0 € et 1400.0 €, indexées à l'année 2021 (abonnements compris). Bien proposé par Olivier JAMES EI, agent commercial (RSAC 398391961)
Commentaire(s)
Aucun commentaire