Partager l'annonce
Si vous souhaitez partager cette annonce, vous devez accepter l'utilisation des cookies : Gestion des cookies
Gestion de l'annonce
Statistiques de l'annonce
Nombre de vues : 149
Dernière visite le : 10/05 à 05:27
Référence : 496976882










Détail de l'annonce
Reechie ROME vous propose ce bien :
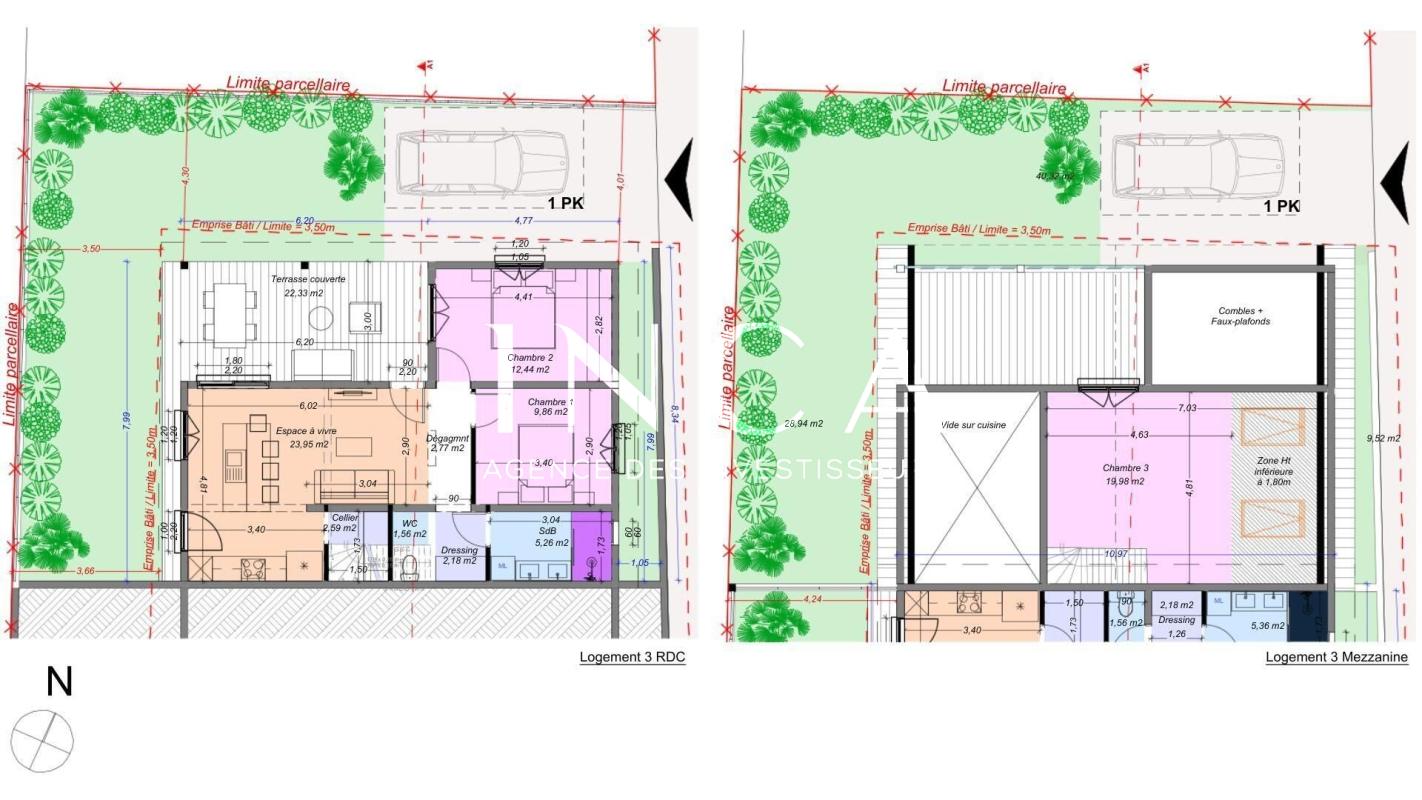
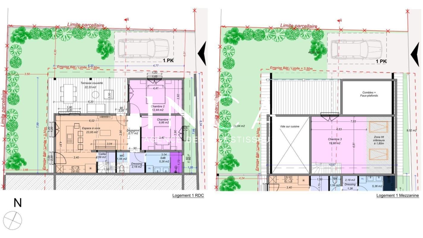
À vendre au François (Réunion Sud) : Découvrez « Les Glycérias », programme neuf de 4 maisons mitoyennes de 75 m² modernes pensées pour le confort et le bien-être, chacune disposant d'un mur de soutènement mitoyen. Dans un quartier calme et verdoyant, chaque logement profite d'une belle pièce à vivre ouverte sur une grande terrasse couverte idéale pour profiter du climat martiniquais, 3 chambres spacieuses dont une en mezzanine, dressing, cuisine équipée, salle d'eau et WC indépendant.
Vous bénéficiez d'un parking privé, d'une gestion écologique de l'eau (citerne et récupération des eaux pluviales), production d'eau chaude solaire, menuiseries aluminium et volets roulants motorisés pour votre confort. Les maisons, avec leur architecture élégante et fonctionnelle, sont parfaites pour une vie de famille agréable ou un investissement locatif rentable. Profitez d'une belle parcelle paysagée, d'un cadre naturel paisible, et d'une proximité avec les commodités du François. Proche du rond point de quatre croisée,
Informations financières :
Prix de vente: 320 000 €, honoraire d'agence inclus et à la charge du vendeur.
Notice descriptive et plans disponibles.
Contactez nous au +596 696 88 24 48 et par mail à contact@inca.immo pour déterminer une visite des lieux.
Société par Actions simplifiée INCA IMMOBILIER, agence titulaire de la carte professionnelle numéro CPI 9721 2023 000 000 018, délivrée le 15/12/2023 par la CCI de Martinique. Immatriculée sous le numéro de SIREN 919454736 RCS de Fort-de-France.nLes informations sur les risques auxquels ce bien est exposé sont disponibles sur le site Géorisques : www.georisques.gouv.fr
Commentaire(s)
Aucun commentaire