Partager l'annonce
Si vous souhaitez partager cette annonce, vous devez accepter l'utilisation des cookies : Gestion des cookies
Gestion de l'annonce
Statistiques de l'annonce
Nombre de vues : 22
Dernière visite le : 10/04 à 16:47
Référence : 519660098










Détail de l'annonce
Fabrice DELLA MUTA vous propose ce bien :
Programme neuf – 3 maisons individuelles avec terrain – Cendrieux (Dordogne)
252 000 € FAI par lot– Projet clé en main
Dans un environnement naturel et calme, à seulement 15 minutes des commerces et écoles, découvrez ce programme résidentiel de 3 maisons neuves de plain-pied, alliant confort moderne, qualité de construction et cadre de vie privilégié.
Un projet complet et sécurisé
Chaque lot comprend :
Une maison individuelle de plain-pied
Un terrain spacieux
Un garage attenant
Un jardin privatif
Un assainissement individuel conforme
Construction réalisée avec des matériaux et techniques reconnus, garantissant durabilité et qualité
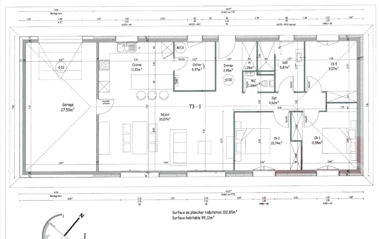
Des maisons fonctionnelles et lumineuses
Surface habitable : 100 m²
Surface de plancher : 102,85 m²
Belle pièce de vie d'environ 33 m² avec cuisine ouverte
3 chambres
Salle d'eau + WC séparés
Cellier
Garage d'environ 27 m² (visible sur les plans)
Agencement moderne, idéal pour une vie de famille confortable (plans visibles pages 5 et 6 des documents techniques)
3 lots disponibles
Lot 1 : 1 604 m² – 252 000 € FAI
Lot 2 : 1 770 m² – 252 000 € FAI
Lot 3 : 1 547 m² – 252 000 € FAI
Variante possible : 245 000 € FAI sans peintures intérieures (idéal pour personnalisation)
Emplacement
Situé sur la commune de Cendrieux (Val de Louyre et Caudeau)
Environnement calme et verdoyant
Accès rapide aux axes principaux
Cadre résidentiel recherché
(Plan de situation visible page 1 du dossier technique)
Les + du projet
Maison neuve = aucun travaux
Projet clé en main, sécurisant pour les acquéreurs
Terrains généreux et bien exposés
Budget maîtrisé pour du neuf
Idéal résidence principale ou investissement
Pourquoi ce bien va performer
Typologie plain-pied très recherchée
Produit rare : terrain + maison neuve
Excellent rapport surface / prix sur le secteur
Forte attractivité pour familles ou primo-accédantsnLes informations sur les risques auxquels ce bien est exposé sont disponibles sur le site Géorisques : www.georisques.gouv.fr
Commentaire(s)
Aucun commentaire