Partager l'annonce
Si vous souhaitez partager cette annonce, vous devez accepter l'utilisation des cookies : Gestion des cookies
Gestion de l'annonce
Statistiques de l'annonce
Nombre de vues : 3
Dernière visite le : 29/01 à 05:06
Référence : 510673649



Détail de l'annonce
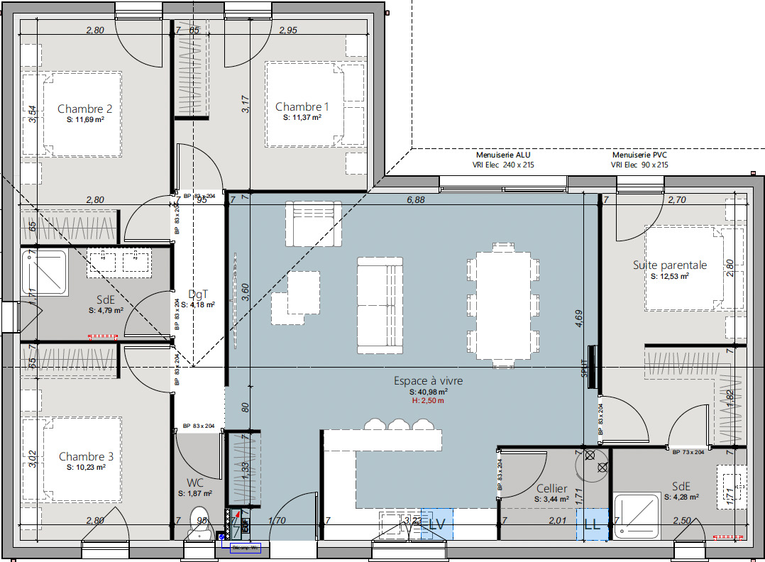
Maison contemporaine en L composée de 4 chambres dont une suite parentale à Audenge – Terrain + construction
Découvrez cette belle maison contemporaine en L de 105,36 m², idéale pour accueillir votre famille dans un environnement paisible et verdoyant.
Implantée sur un terrain d'environ 470 m², en impasse et au calme, cette maison séduit par son agencement fonctionnel et son espace jour convivial de plus de 40 m², traversant et plein sud, offrant une lumière naturelle tout au long de la journée.
Composition :
4 chambres dont une suite parentale,
Une salle d'eau indépendante,
WC séparé,
Cellier attenant à la cuisine,
Belle pièce de vie ouverte sur le jardin.
Le tout dans un cadre résidentiel agréable, à proximité des écoles, des commerces et du bassin d'Arcachon.
Prix global : 355000 €, terrain + construction, fondations adaptées au terrain incluses (carrelage, faïence, sanitaires compris).
Une belle opportunité de devenir propriétaire à Audenge, dans une maison contemporaine qui conjugue esthétique, confort et sérénité.
Constructeur de maisons individuelles sur mesure, tous nos plans sont modifiables selon vos besoins et vos envies.
Nous vous avons sélectionné ce terrain par l'intermédiaire de nos partenaires fonciers dans le cadre d'un projet avec GIB CONSTRUCTION.
Pour plus de renseignements, vous pouvez contacter Géraldine par téléphone O675710291 (si pas de réponse car en RDV, envoyez un SMS avec vos coordonnées).
GIB Construction, 2ème génération de constructeurs bâtisseurs en GIRONDE, 19 agences de proximité dans le Sud-Ouest pour vous accompagner dans votre projet personnalisé sur-mesure.
Commentaire(s)
Aucun commentaire