Partager l'annonce
Si vous souhaitez partager cette annonce, vous devez accepter l'utilisation des cookies : Gestion des cookies
Gestion de l'annonce
Statistiques de l'annonce
Nombre de vues : 41
Dernière visite le : 12/05 à 16:38
Référence : 520578866





Détail de l'annonce
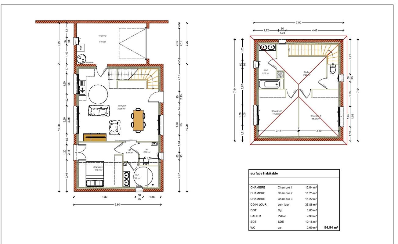
Située dans un environnement recherché de Lalande, cette maison neuve vous séduira par son emplacement privilégié et ses prestations . Livraison prévue fin 2026, idéale pour concrétiser votre projet sans les contraintes de la construction.
Dès l'entrée, vous découvrirez une belle pièce de vie lumineuse avec une cuisine ouverte (à aménager selon vos envies), offrant un espace convivial et fonctionnel. Le rez-de-chaussée comprend également un WC, une salle d'eau ainsi qu'une chambre idéal pour un espace parental, parfaite pour une vie de plain-pied.
À l'étage, l'espace nuit est dédié aux enfants avec deux chambres, un WC indépendant et une salle de bain.
Maison mitoyenne par le garage, elle bénéficie également d'un agréable jardinet, idéal pour profiter des beaux jours.
Les + :
Secteur calme et très recherché
À seulement 5 minutes du centre-ville
Proximité immédiate des transports (bus), commerces et écoles
Maison neuve : confort moderne et sérénité
Un bien idéal pour une première acquisition en résidence principale, alliant praticité, confort et tranquillité.
À découvrir sans tarder !
Commentaire(s)
Aucun commentaire