Partager l'annonce
Si vous souhaitez partager cette annonce, vous devez accepter l'utilisation des cookies : Gestion des cookies
Gestion de l'annonce
Statistiques de l'annonce
Nombre de vues : 167
Dernière visite le : 19/05 à 02:28
Référence : 516708359





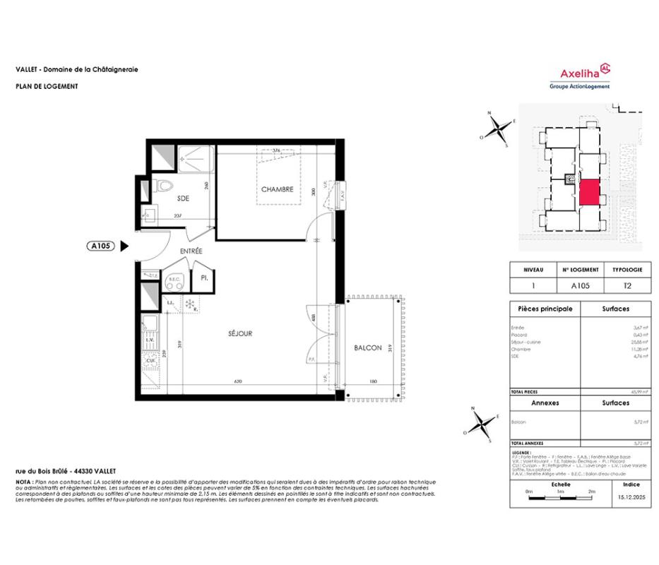
Détail de l'annonce
C'est un appartement de type T2 (F2 / 2 pièces / 1 chambre), d'une surface habitable totale de 45.99 m², situé au 1er étage, exposé Sud-Est
Commentaire(s)
Aucun commentaire