Partager l'annonce
Si vous souhaitez partager cette annonce, vous devez accepter l'utilisation des cookies : Gestion des cookies
Gestion de l'annonce
Statistiques de l'annonce
Nombre de vues : 119
Dernière visite le : 24/05 à 08:21
Référence : 464177294





Détail de l'annonce
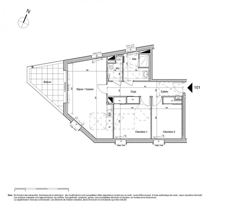
Résidence ALBERT 1er : Appartements neufs disponibles immédiatement.
Découvrez la Résidence ALBERT 1er, récemment livrée et prête à accueillir ses nouveaux habitants. Située à Saint-Nazaire, cette adresse d'exception vous offre un cadre de vie idéal, entre la ville et l'océan.
Avec une vue imprenable sur la promenade du front de mer, la Résidence ALBERT 1er vous permet de profiter pleinement de l'ambiance maritime tout en étant proche des commerces, des services et du cœur dynamique de la ville.
Les 11 appartements, T2, T3 ou T4, ont été conçus avec des prestations de qualité. Chaque logement est desservi par un ascenseur et dispose d'un garage fermé en sous-sol, offrant confort et praticité au quotidien.
La Résidence ALBERT 1er, récemment livrée, est prête à accueillir ses nouveaux résidents dans un cadre de vie moderne et agréable. Ne manquez pas l'opportunité de vous installer dans cet espace d'exception à Saint-Nazaire.
Commentaire(s)
Aucun commentaire