Partager l'annonce
Si vous souhaitez partager cette annonce, vous devez accepter l'utilisation des cookies : Gestion des cookies
Gestion de l'annonce
Statistiques de l'annonce
Nombre de vues : 116
Dernière visite le : 12/05 à 23:34
Référence : 485838116





Détail de l'annonce
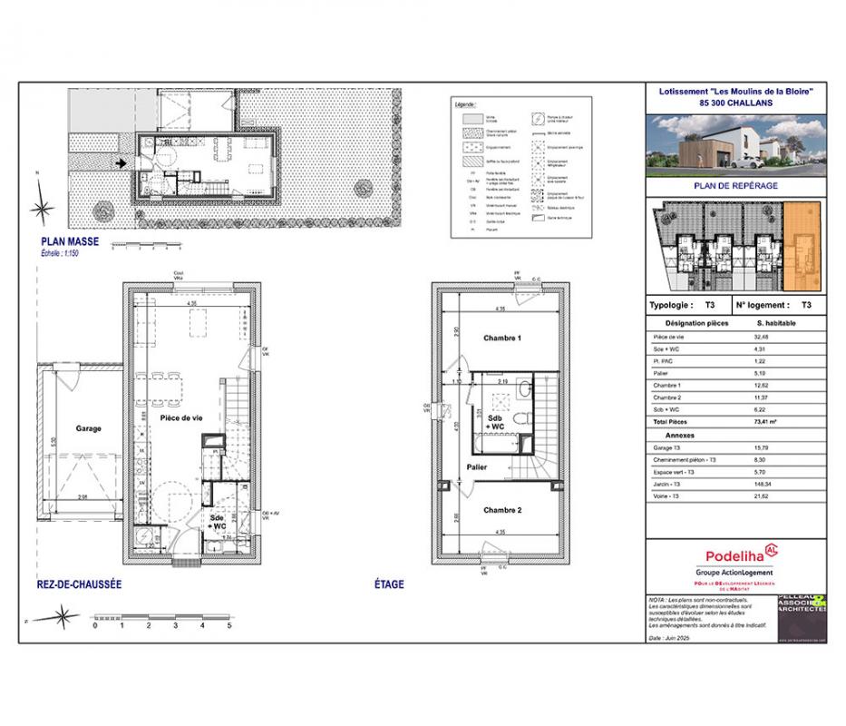
C'est une maison de type T3 (F3 / 3 pièces / 2 chambres), d'une surface habitable totale de 73.41 m² avec 1 étage, exposée Est
Commentaire(s)
Aucun commentaire