Partager l'annonce
Si vous souhaitez partager cette annonce, vous devez accepter l'utilisation des cookies : Gestion des cookies
Gestion de l'annonce
Statistiques de l'annonce
Nombre de vues : 186
Dernière visite le : 24/05 à 12:32
Référence : 493504796







Détail de l'annonce
3%.COM - À WESTHOFFEN, dans un jolie village alsacien, redonnez vie à cette charmante maison de village de 105m2 à rénover totalement avec une dépendance attenante.
--- À saisir au prix de 96 000EUR FAI
--- LA MAISON EST A RÉNOVER EN TOTALITÉ (électricité, fermetures, sanitaire, chauffage, cuisine, salle de bains, murs, sols, etc...)
--- Vous recherchez un bien à rénover totalement, à transformer à vos goûts, la qualité de vie d'un petit village, alors n'hésitez pas et venez visiter ce bien.
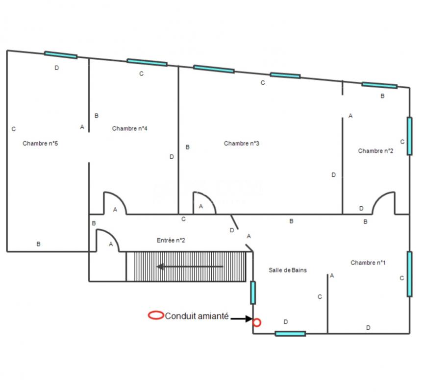
--- Vous trouverez des croquis et d'autres photos sur notre site troispourcent.
--- Maison (environ 115 m2)
- Année de construction : 1930
- 5 pièces.
- 1 cour
- 1 cave
--- Dépendance (environ 110m2) :
- 1 atelier.
- 1 pièce.
- 1 garage.
Autre information:
- Présence de plomb - déclarations effectuées auprès de l'ARS.
- Beau potentiel pour cet ensemble qui nécessite des travaux complets de rénovation et d'aménagement.
-- Principales distances:
Molsheim : 15 min, 11 km.
Strasbourg centre: 29 min, 27 km.
Saverne : 25 min, 19 km.
Wasselonne : 8 min, 5 km.
--Contactez Célia au 07.78.12.20.62
Du lundi au samedi de 9h00 à 19h00.
Agent Commercial en Immobilier, inscrit au RSAC Strasbourg No 809 126 998.
-- Agence ROTH IMMOBILIER, RCS 803 863 638, franchisé 3%.COM.
-- Réseau national à honoraires réduits: 3% TTC
- Annonce rédigée et publiée par un Agent Mandataire -
Commentaire(s)
Aucun commentaire