Partager l'annonce
Si vous souhaitez partager cette annonce, vous devez accepter l'utilisation des cookies : Gestion des cookies
Gestion de l'annonce
Statistiques de l'annonce
Nombre de vues : 132
Dernière visite le : 12/05 à 18:50
Référence : 503813621


Détail de l'annonce
REFERENCE DE L'ANNONCE : 0965-11
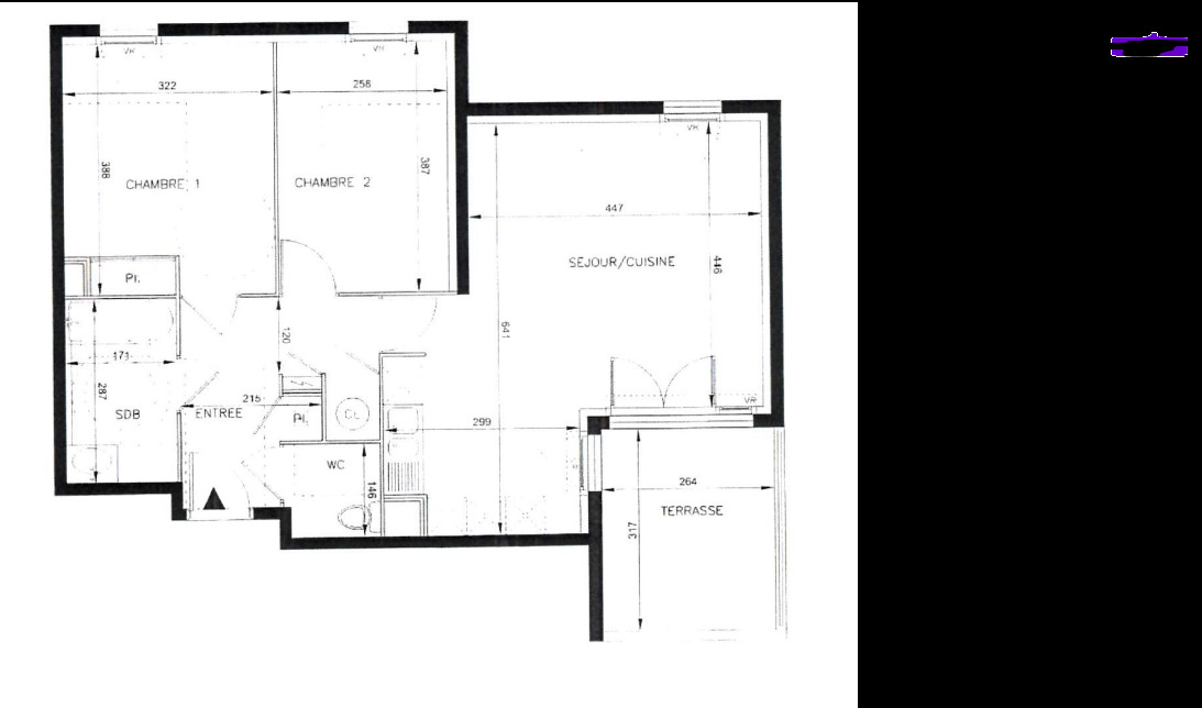
DomUP location vous propose, sur la commune de MONTPELLIER, un appartement T3 situé au 2ème étage.
Il se compose :
d'une entrée
d'un séjour-cuisine de 27.70 m2 donnant sur une terrasse de 8.37m2
de deux chambres de 12.22 m2 et 10.01 m2 dont une avec placard
d'une salle de bains
d'un WC séparé
Possibilité de louer un stationnement (en supplément)
Loyer : 802.15 € charges comprises (ordures ménagères, charges collectives...)
Loyer payable à terme échu - sans frais d'agence
Des références sont exigées. Un dossier complet devra être soumis avant toute visite.
A compter du 1er décembre, le n° de téléphone DomUP change, merci de nous joindre au
05 61 10 50 10
Les informations sur les risques auxquels ce bien est exposé sont disponibles sur le site Géorisques : www.georisques.gouv.fr
Commentaire(s)
Aucun commentaire